
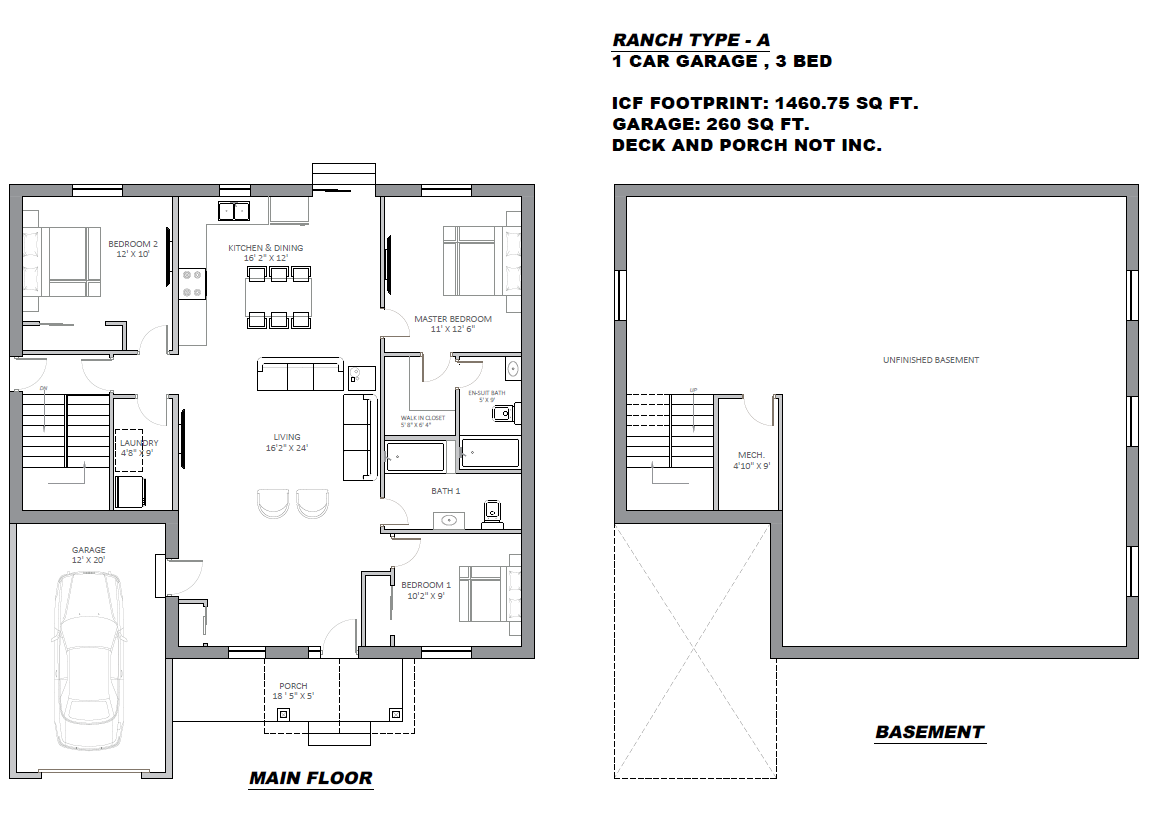
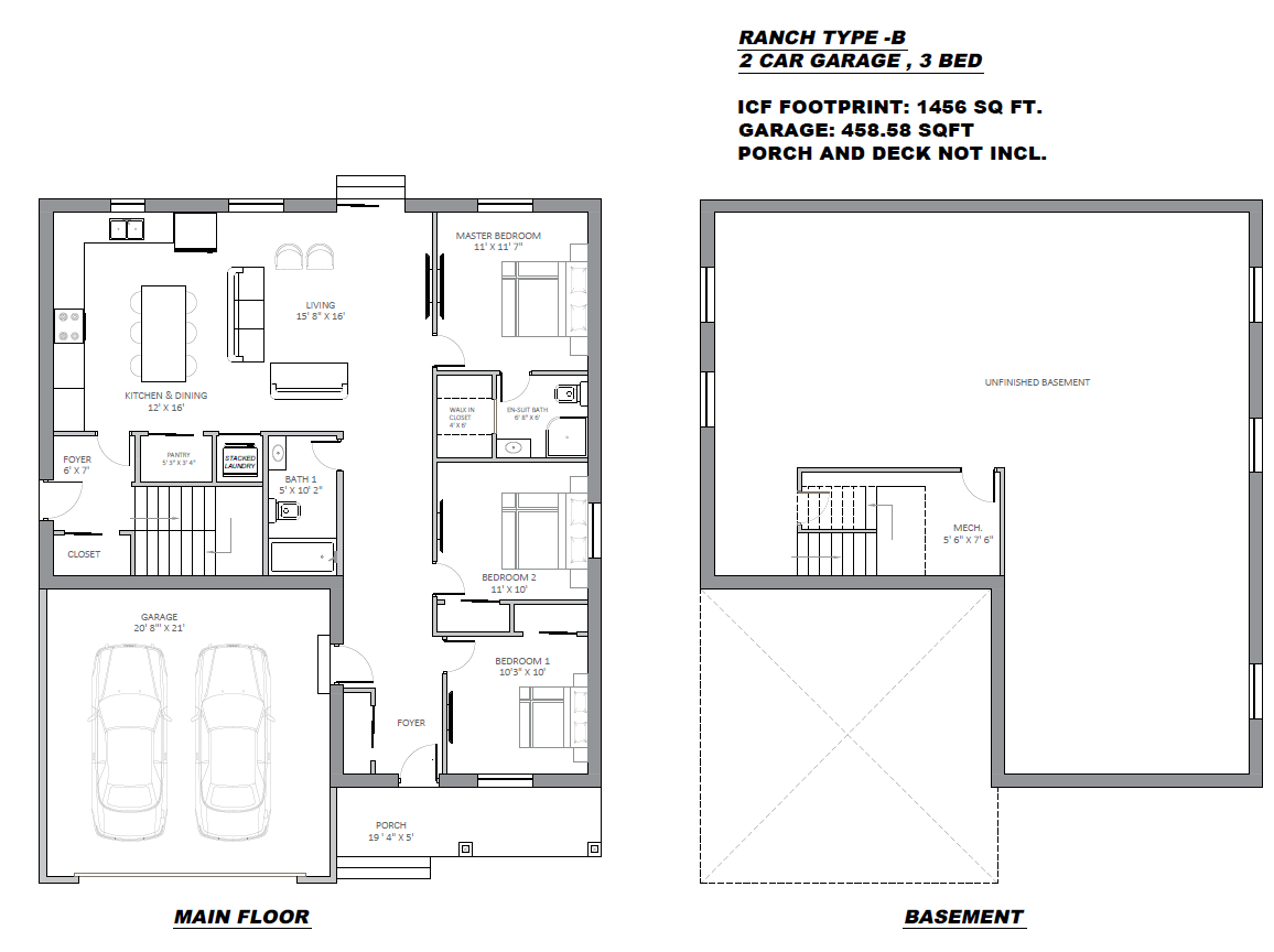
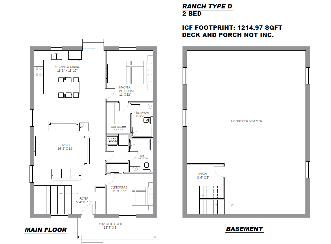
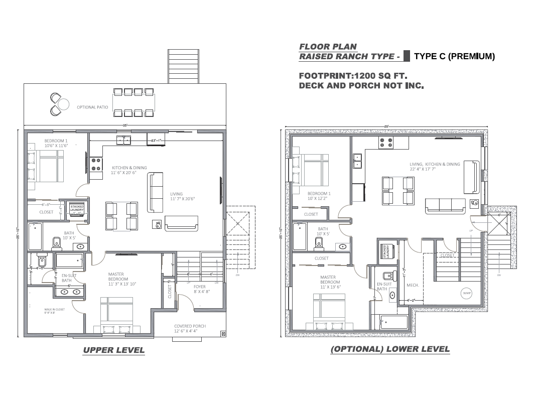
Colchester Heights offers 52 Raised Ranch or Bungalow (Ranch) Style eco-friendly homes.
Probably Canada's first "Carbon-Free Community" with zero on-site greenhouse gas emissions (no natural gas connections)
Use of geothermal and solar initiatives to further reduce energy costs (Upgrade Option)
Use of Insulated Concrete Form (ICF) blocks and double-glazed window to achieve a highly energy efficient building envelope to slash energy consumption
Use of Aero Sealing Technology to create an extremely air-tight building envelope (low ACH) and improve indoor air quality (Upgrade Option)
Use of Air-source Heat Pumps, Energy Recovery Ventilator (ERV) and electrical water heater to drastically reduce heating/cooling and hydro expenses

All renderings and illustrations are merely artist concepts and are for illustration purposes only. All are subject to change at the sole discretion of the developer and the purchaser agrees to accept any of such changes. All plans are not drawn to scale and are subject to architectural reviews and revisions by municipal authorities. Suites are sold unfurnished. All materials, specifications, floorplans, details, stated areas and dimensions, if any, are approximate, and are subject to change without notice in order to comply with municipal regulations, site conditions, architectural or structural requirements, supplies by vendor, as well as normal variances during construction. Dimensions stated on the plans may vary with the actual space. Patio, garden and balcony area where applicable are shown for display purposes only. The size and locations are subject to change without notice. The furniture and kitchen displayed are for illustration purposes only. The size, type and locations of windows are subject to change and will vary per floor. (E. & O.E.)
